ФОТО РЕАЛЬНОГО ДОМА С МЕБЕЛЬЮ под ключ ИЗ ТЕПЛОЙ КЕРАМИКИ с УЧАСТКОМ!!!
ПРОДАЖА от ФИЗ.ЛИЦА! ПОД СЕМЕЙНУЮ ИПОТЕКУ НЕ ПОДХОДИТ!!! В ДКП полная стоимость.
Дом для круглогодичного проживания 171 м кв (размер без веранды) в стиле барнхаус из теплой керамики с внутренней отделкой, кухней, бытовой техникой, мебелью как на фото. Фото актуального дома. Поселок находится в окружении леса около красивого пруда с платной рыбалкой. Дом намного теплее из керамики , чем из газоблока. Дома из теплого керамического кирпича дольше держат тепло и медленнее остывают. В доме подключены все коммуникации: электричество, водопровод, канализация, отопление водяное, кондиционеры, водоочистка.
Фундамент: монолитная лента (ростверк)+ монолитные армированные сваи, сверху утепленная монолитная плита. Перекрытие ж/б.
Монолитная лестница. В отделке для ступеней используется дуб цельная ламель, подступенок керамогранит.
Стены: теплая керамика c утеплением минвата 100мм. Фасад дома отделан Кликфальцем. Планкен из лиственницы. Окна Rexau тройные стеклопакеты. Фальцевая кровля с утеплителем 200 мм.
На первом этаже: холл, две комнаты 11,9;11,2 м кв), кухня-гостиная (41 м кв) с выходом на веранду, санузел, бойлерная-прачечная.
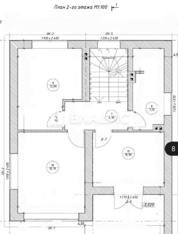
На втором этаже: 3 комнаты 16,5;14,9; 22,4 м кв (комната с гардеробной), ванная комната.
Коммуникации все заведены в дом: Электричество 30 кВт, скважина 48 м , современный септик Alta Bio 5(финская технология) и переливной колодец с водоотведением в ливневку. Отопление водяное, теплый пол 1 и 2 этаж , радиаторы под каждым окном. В настоящее время дом отапливается от электрического котла и теплый пол, и батареи. В дальнейшем всю эту систему отопления можно подключить к газовому котлу. Для теплого пола в отделке использованы на 1 этаже керамогранит 60х120, на 2 этаже и в комнатах на 1 эт использована кварцвиниловая плитка для теплых полов.
Стены оштукатурены под покраску (ни обои крашеные). Потолки ГКЛ оштукатурены под покраску.
Газ по гос. программе. Первая очередь в поселке уже подключена.
Развитая инфраструктура. В шаговой доступности от поселка школы, сады, спортивный комплекс, магазины, Вкусно и точка, фермерский рынок.Ж/д станция барыбино 2 км.Автобусная остановка 500 м от КПП. Поселок охраняется управляющей компанией стоимость 3000 руб/мес Купить дом на улице Горького в городе Фрязино.